VENDITA – VILLA IN COSTRUZIONE – ALTO LAGO DI COMO – COLICO
A Colico, in zona di quiete e riservata, vicino ai centri servizi e vie di comunicazioni importanti, proponiamo la vendita di una villa in costruzione.
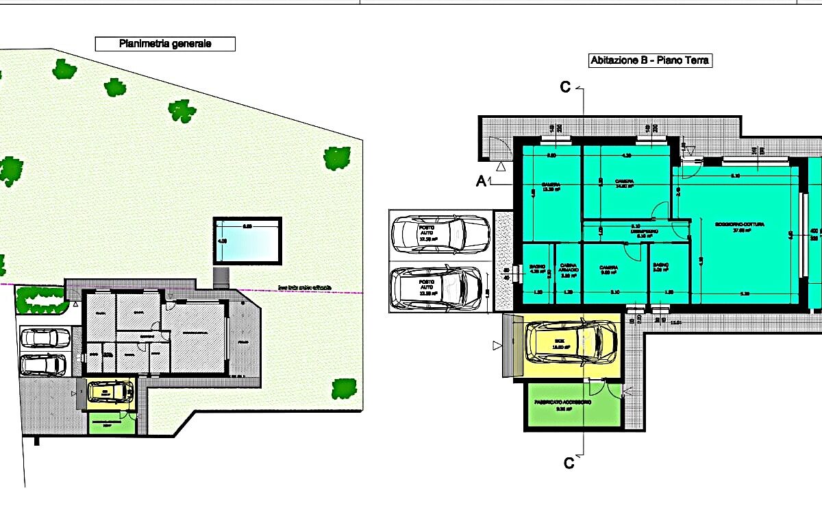
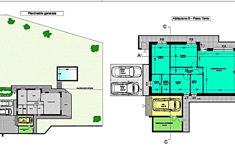
Moderno design, impianti domotica, completa di ampio giardino con stupenda vista lago e panoramica intorno.
La villa è prenotabile per l’acquisto, con opzione di piscina/solarium.
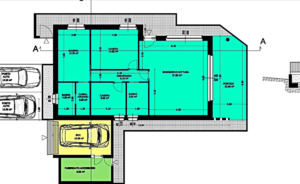
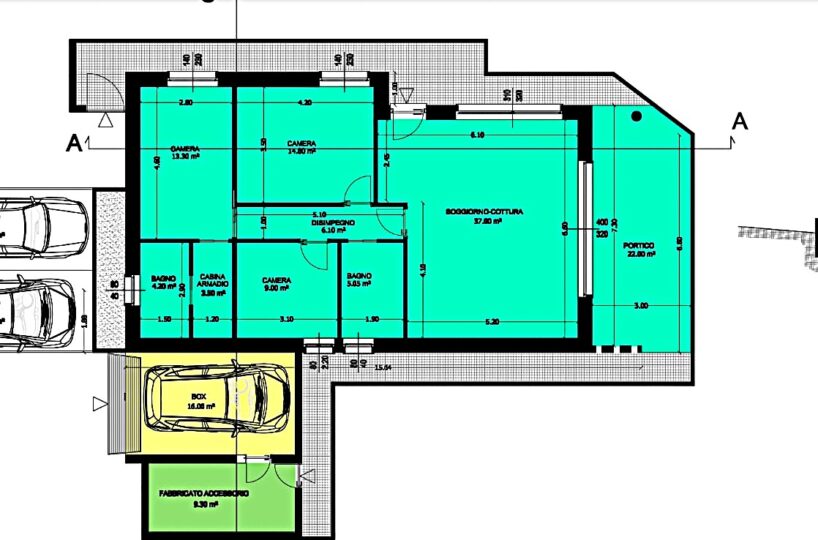
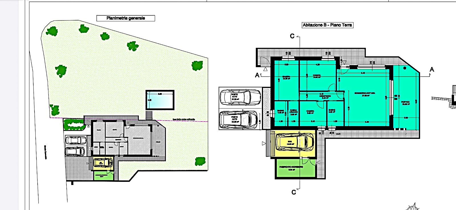
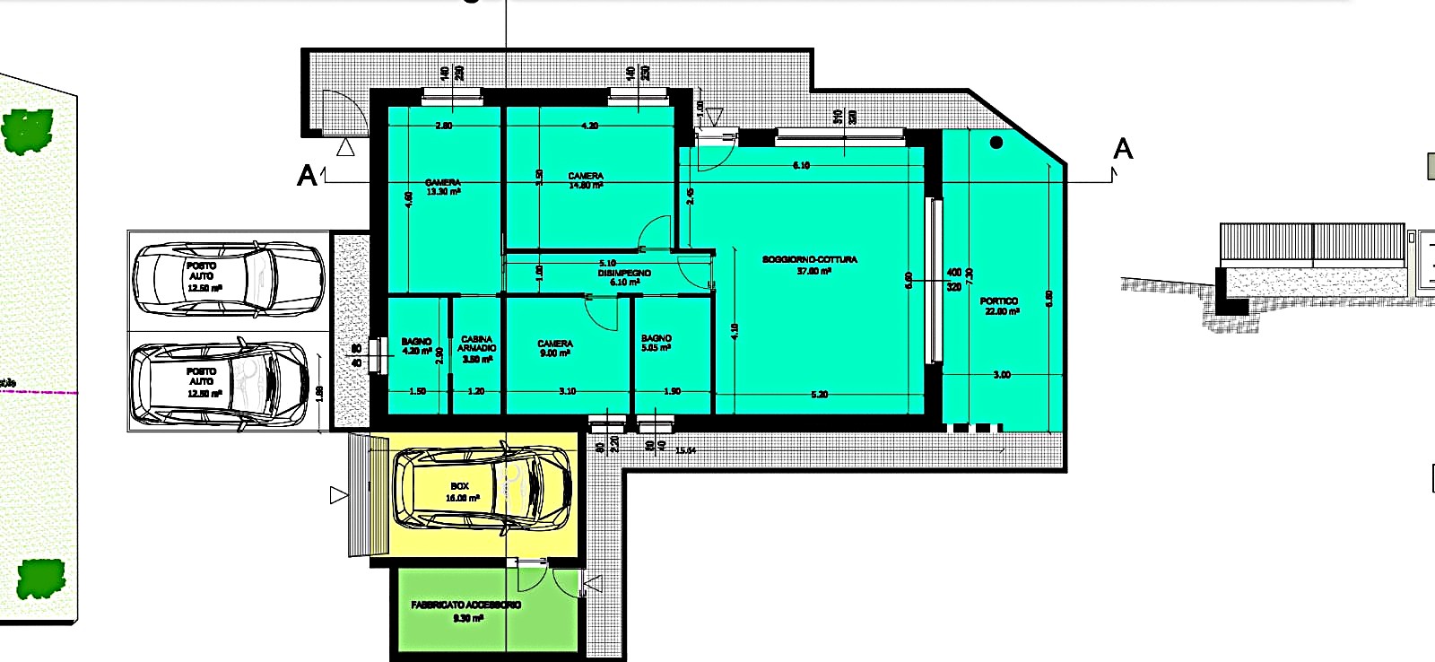
l’immobile è strutturato su un livello ed è cosi composto: Portico coperto, ingresso su ampio locale soggiorno/cottura/pranzo, disimpegno, 2 camere, bagno, camera con locale guardaroba e bagno e garage.
Due posti auto scoperto ed ampi spazi di manovra per l’accesso.
La consegna è prevista per Marzo 2026; è prevista la realizzazione di una piscina di 6mtx4mt, solo su richiesta con supplemento extra sul prezzo d’acquisto!
Oltre la prenotazione per l’acquisto, è ancora possibile personalizzare e scegliere i materiali degli interni/rivestimenti secondo esigenze proprie.
Siamo disponibili per una visita diretta in loco!
Per approfondimenti chiamateci pure al +39 3356895749 !!! GRAZIE
La Struttura Dispone Di
- Aria Condizionata
- Garage
- Giardino
- Piscina
- Pompa di calore
- Portico
- Posti Auto Interni
- Vista lago
- Vista monti
- Vista panoramica
Efficienza Energetica
- Classe EnergeticaA+
















































